Binnengebied met garages, staanplaatsen en 2 wooneenheden
Woning voor € 985.000
Knaptandstraat 141, 9100 Sint-Niklaas
Ref: 2348384
2 badkamers
Omschrijving
Binnengebied met garages, staanplaatsen en 2 wooneenheden.
Dit groot garagecomplex te Sint-Niklaas is gelegen in een omgeving met hoge parkeerdruk.
Het complex bestaat uit 45 garages en 2 parkeerplaatsen. Op het terrein zijn nog uitbreidingsmogelijkheden.
Alle garages en parkeerplaatsen zijn verhuurd.
Tot dit binnengebied behoren ook 2 wooneenheden. De wooneenheden werden in het verleden omgevormd tot 1 woning, maar dit is eventueel mits renovatie terug te scheiden.
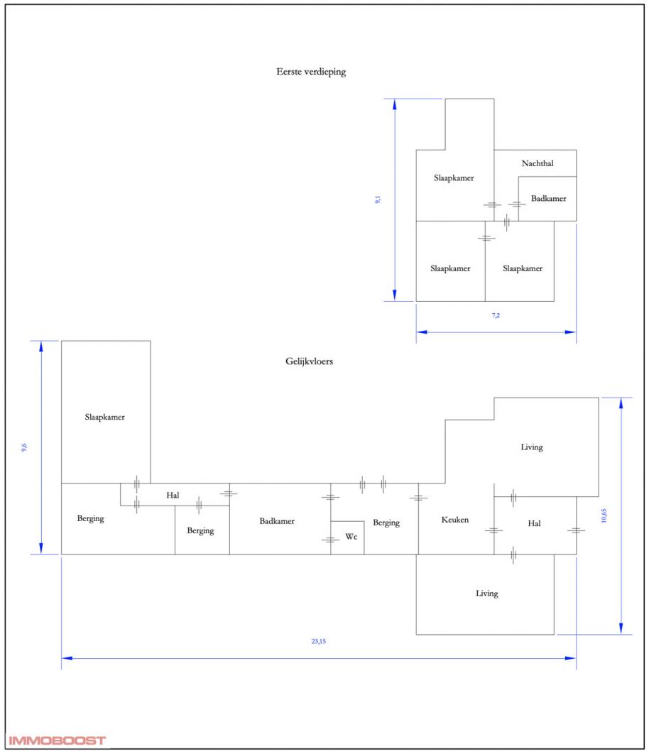
Indeling woning 1 : hal, living, keuken, badkamer, 3 slaapkamers, berging, zolder, tuin. Deze woning is voorzien van dubbele beglazing en een recent dak.
Indeling woning 2 : hal, plaats voor een keuken, badkamer,1 slaapkamer, berging, koer, tuin.
Aparte meters. EPC 825 kwh2.
De totale oppervlakte van de percelen is 2.123 m2. Men kan er ook voor kiezen de constructies af te breken. Het bouwen van wooneenheden is toegestaan, daarvoor dient men af te stemmen met de Stad Sint-Niklaas (de stad liet ons weten de voorkeur te geven aan een inbreidingsproject, deze info kan bezorgd worden !)
pluspunt : in afwachting van een bouwvergunning ontvangt men nog huurinkomsten.
Men kan het binnengebied bereiken langs 2 openbare wegen ! Eén langs de Klokkendreef en één langs de Knaptandstraat.
Indien er enkel interesse is voor de 45 garages en 2 staanplaatsen, dan kunnen deze ook apart verkocht worden.
(De nieuwbouwgarages op bijgevoegde foto zijn niet inbegrepen, ze staan op het naast gelegen perceel, Klokkendreef)
Voor meer informatie kan je terecht bij Sven op het nummer 0477/31.99.93.
Dit groot garagecomplex te Sint-Niklaas is gelegen in een omgeving met hoge parkeerdruk.
Het complex bestaat uit 45 garages en 2 parkeerplaatsen. Op het terrein zijn nog uitbreidingsmogelijkheden.
Alle garages en parkeerplaatsen zijn verhuurd.
Tot dit binnengebied behoren ook 2 wooneenheden. De wooneenheden werden in het verleden omgevormd tot 1 woning, maar dit is eventueel mits renovatie terug te scheiden.
Indeling woning 1 : hal, living, keuken, badkamer, 3 slaapkamers, berging, zolder, tuin. Deze woning is voorzien van dubbele beglazing en een recent dak.
Indeling woning 2 : hal, plaats voor een keuken, badkamer,1 slaapkamer, berging, koer, tuin.
Aparte meters. EPC 825 kwh2.
De totale oppervlakte van de percelen is 2.123 m2. Men kan er ook voor kiezen de constructies af te breken. Het bouwen van wooneenheden is toegestaan, daarvoor dient men af te stemmen met de Stad Sint-Niklaas (de stad liet ons weten de voorkeur te geven aan een inbreidingsproject, deze info kan bezorgd worden !)
pluspunt : in afwachting van een bouwvergunning ontvangt men nog huurinkomsten.
Men kan het binnengebied bereiken langs 2 openbare wegen ! Eén langs de Klokkendreef en één langs de Knaptandstraat.
Indien er enkel interesse is voor de 45 garages en 2 staanplaatsen, dan kunnen deze ook apart verkocht worden.
(De nieuwbouwgarages op bijgevoegde foto zijn niet inbegrepen, ze staan op het naast gelegen perceel, Klokkendreef)
Voor meer informatie kan je terecht bij Sven op het nummer 0477/31.99.93.
Indeling
Gelijkvloers
| Badkamer 1 | ||
| Badkamer 2 | ||
| Garage |
Ruimtelijke ordening
| Recente bestemming | Woongebied |
| Dagvaardingen | Nee |
| Rechterlijke herstelmaatregel | Nee |
| Bestuursdwang | Nee |
| Last onder dwangsom | Nee |
| Minnelijke schikking | Nee |
| Voorkooprecht | Nee |
| Verkavelingsvergunning | Nee |
| Effectief overstromingsgevoelig | Nee |
| Mogelijk overstromingsgevoelig | Nee |
| Beschermd pand? | Nee |
EPC gegevens
0
Comfort
| Ramentekst | Goed |
Financiële info
| Prijs | € 985.000,00 |
Overige Info
| Aantal garages | 45 |
| Aantal parkeerplaatsen | 2 |
Bebouwing
| Aantal badkamers | 2 |
| Dak | Zeer goed |
| Elektrisch keuringsattest | Niet ingegeven |
| Renovatieplicht | Niet ingegeven |
Alle aanbiedingen gelden onder voorbehoud van fouten, eerdere verkoop, prijswijzigingen of vergetelheid.